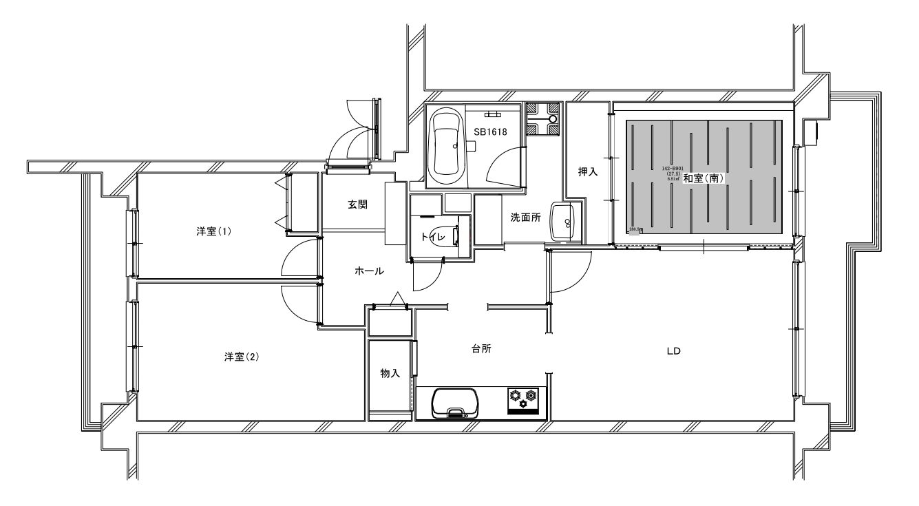
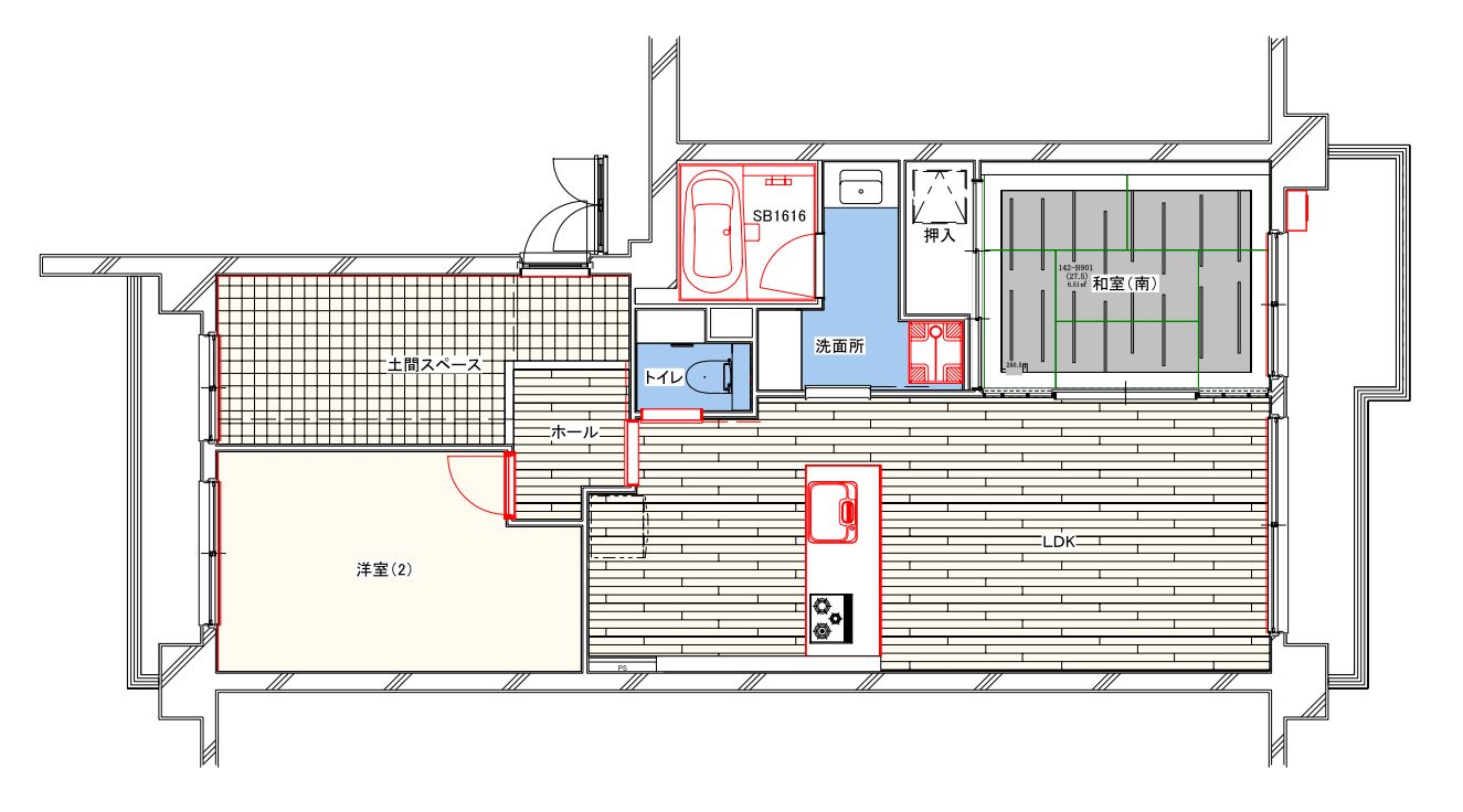
無料見積はこちら 住宅診断はこちら LINEで無料見積り・相談 HOME施工事例水まわりリフォーム神戸市長田区 マンション水廻り工事 神戸市長田区 マンション水廻り工事 施工事例データ 施工箇所 マンション水廻り・内装 施工内容 キッチン、洗面、トイレ、浴室、内装、土間 施工前はこちら キッチン Before 内装 Before アウルによる施工中の様子 図面 Before 図面 プラン図 施工が完了しました 玄関 After 洋室 After リビング After 洗面 After 浴室 After 和室 After トイレ After トイレ After 水まわりリフォーム事例一覧はこちら 間取り変更、内装事例一覧はこちら 施工事例一覧はこちら アウルについて 会社案内代表挨拶会社概要アクセスマップ アウルが選ばれる理由 部門紹介 施工事例 施工事例一覧 階段 外壁、屋根 建物解体 玄関ドア、窓 リノベーション 水まわりリフォーム 間取り変更、内装 ビル・施設改修 トラブル解消 お客様の声 お客様の声一覧 お役立ち情報 価格表 受注状況 メンテナンス工事から大型リフォームもお任せください 不動産の売買、リノベーションをお考えの方へ 空き家・建物の解体工事にお悩みの方へ 火災保険を適用した屋根・外壁修理 イベント・チラシ スタッフブログ 相談会・勉強会 家の売却をお考えの方へ 住宅診断 プライバシーポリシー よくある質問 リフォームの流れ お問い合わせ お問い合わせ 無料お見積もり LINE相談・見積もり